слабый снег, ветер: 2 м/c, Ю, давление: 2 мм рт.ст., влажность: 34% -16°
Сделать стартовой

Продам комнату

Объявление № 5033184    
Квартира

Тип квартиры  комната
Количество комнат  1
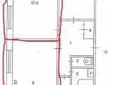
Общая площадь  49 кв.м
жилая  34.9 кв.м
Этаж/Этажность  5/5
Отделка  в хорошем состоянии
Санузел  раздельный
Балкон/лоджия  балкон
в здании

Ивана Черных 95  (1)  Показать на панораме
Октябрьский район
Этажность  5
Материал  панель
Год постройки  1980
Вид  вторичное
Есть Пластиковые окна.
Описание

Собственник. Собственность долевая, 4/5 доли от общей площади трехкомнатной квартиры. Две большие комнаты 17, 4 кв.м. и 17, 5 кв.м. В хорошем состоянии. В каждой комнате установлена дверь с замком. Коммунальные услуги оформлены отдельно. Рассматривается вариант продажи комнат по отдельности, по 2/5 доли. В пешей доступности Гимназия № 26, торговый центр "Манеж".
Карта     Показать панораму

Уменьшить
Увеличить
Условия

3 679 000 руб.
  (75 080 руб. за м2). Торг. Обмен. Ипотека. Документы готовы.

Контактная информация

Контактное лицо: Руслан

Телефон:

Объявление № 5033184     Статистика

Опубликовал: Ruslan0906
Опубликовано: 01 декабря 2025
Истекает: 01 марта 2026
Статус: Опубликовано Опубликовано
Поделиться

Похожие варианты (6) На карте

1-комнатную
квартиру
Суворова 10  (4)  Показать на панораме
Октябрьский район
кирпич
Год постройки:1977
7 этаж
9 всего
31.9 м2
18.2 м2 жилая
6.3 м2 кухня
3760 т.р.
117.87 за м2
Поднять объявление Авторизуйтесь, чтобы добавить в избранное Авторизуйтесь, чтобы оставить заметку Авторизуйтесь, чтобы отправить объявление по почте Поделиться ссылкой
20 ноября 2025.     КОНТАКТ: Магистрат     ТЕЛ: .     Магистрат
1-комнатную
квартиру
Иркутский тракт 85  (6)  Показать на панораме
Октябрьский район
панель
Год постройки:1987
1 этаж
9 всего
35 м2
9 м2 кухня
3700 т.р.
105.71 за м2
Поднять объявление Авторизуйтесь, чтобы добавить в избранное Авторизуйтесь, чтобы оставить заметку Авторизуйтесь, чтобы отправить объявление по почте Поделиться ссылкой
03 декабря 2025.     КОНТАКТ: Дарима     ТЕЛ: .     Городской квартал
1-комнатную
квартиру
Сергея Лазо 10  (3)  Показать на панораме
Октябрьский район
Год постройки:1980
8 этаж
9 всего
30.9 м2
21 м2 жилая
5 м2 кухня
3650 т.р.
118.12 за м2
Поднять объявление Авторизуйтесь, чтобы добавить в избранное Авторизуйтесь, чтобы оставить заметку Авторизуйтесь, чтобы отправить объявление по почте Поделиться ссылкой
22 декабря 2025.     КОНТАКТ: Альпидовский Дмитрий Анатольевич     ТЕЛ: .     Компания ЭТАЖИ
1-комнатную
квартиру
Сергея Лазо 10  (3)  Показать на панораме
Октябрьский район
кирпич
Год постройки:1980
8 этаж
9 всего
30.1 м2
17 м2 жилая
7 м2 кухня
3650 т.р.
121.26 за м2
Поднять объявление Авторизуйтесь, чтобы добавить в избранное Авторизуйтесь, чтобы оставить заметку Авторизуйтесь, чтобы отправить объявление по почте Поделиться ссылкой
02 декабря 2025.     КОНТАКТ: Татьяна     ТЕЛ: .     Жилфонд
1-комнатную
квартиру
Беринга 1/3  (1)
Октябрьский район
панель
Год постройки:1972
2 этаж
5 всего
30 м23600 т.р.
120 за м2
Поднять объявление Авторизуйтесь, чтобы добавить в избранное Авторизуйтесь, чтобы оставить заметку Авторизуйтесь, чтобы отправить объявление по почте Поделиться ссылкой
17 декабря 2025.     КОНТАКТ: Мария     ТЕЛ: .     РиэлтПарк
Добавить объявление
Недвижимоcть на карте
Поиск по критериям +179 8717

ПРОДАЮ

ОБМЕН

СДАЮ

СПЕЦИАЛЬНЫЕ ПРЕДЛОЖЕНИЯ (44)

Агентства недвижимости 

Самолет плюс - центр Томск

Предложений:259

Алатарцев.Недвижимость

Предложений:746

Грасиона

Предложений:19

Компания ЭТАЖИ

Предложений:863

ТДСК Инвест

Предложений:52

Агама

Предложений:32

Жилфонд

Предложений:251