слабый снег, ветер: 4 м/c, Ю, давление: 2 мм рт.ст., влажность: 35% -3°
Сделать стартовой

Сдам в аренду нежилое помещение

Объявление № 5111582    
Коммерческая

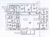
Тип объекта  Нежилое помещение
Общая площадь  291.6 кв.м
Этаж/этажность  1/9
в здании

Льва Толстого 83 (Фрунзе проспект 176)  (1)  Показать на панораме
Советский район
Этажность  9
Материал  кирпич
Вид  вторичное
Описание

Собственник, без комиссии для арендатора.

Торгово-офисное пространство на первой линии с парковкой у входа.

Помещение имеет отдельный и запасной вход, оборудовано системами охранно-пожарной сигнализации и кондиционирования.

По переднему периметру помещения расположены окна, что позволяет организовать кабинетную систему под медицинский вид деятельности или открытое пространство под торговлю или офис формата open-space.

На дополнительные вопросы готовы ответить по телефону, звоните, будем рады сотрудничеству.
Карта     Показать панораму

Уменьшить
Увеличить
Условия

250 000 руб.
  (860 руб. за м2). Коммунальные услуги НЕ входят в цену.

Контактная информация

Контактное лицо: Собственник. Мария.

Телефон:

Бизнесметр, ЗАО Инфолайн

Объявление № 5111582     Статистика

Опубликовал: 309784
Опубликовано: 11 декабря 2025
Истекает: 01 января 2026
Статус: Опубликовано Опубликовано
Поделиться

Похожие варианты (6) На карте

Нежилое помещениеЗаливная 1б  (5)  Показать на панораме
Советский район
цоколь с окнами
3 всего
289.1 м2250.072 т.р.
0.865 за м2
+ свет и вода по счетчикам
Поднять объявление Авторизуйтесь, чтобы добавить в избранное Авторизуйтесь, чтобы оставить заметку Авторизуйтесь, чтобы отправить объявление по почте Поделиться ссылкой
02 декабря 2025.     КОНТАКТ: Мария, от собственника.     ТЕЛ: .     БИЗНЕСМЕТР
Нежилое помещениеКирова проспект 3г  (2)  Показать на панораме
Кировский район
2 этаж
2 всего
270 м2250 т.р.
0.93 за м2
Поднять объявление Авторизуйтесь, чтобы добавить в избранное Авторизуйтесь, чтобы оставить заметку Авторизуйтесь, чтобы отправить объявление по почте Поделиться ссылкой
18 декабря 2025.     КОНТАКТ: Дмитрий     ТЕЛ: .     Алатарцев.Недвижимость
Нежилое помещениеМосковский тракт 2г  (5)
Кировский район
1 этаж
5 всего
356.7 м2250 т.р.
0.7 за м2
Поднять объявление Авторизуйтесь, чтобы добавить в избранное Авторизуйтесь, чтобы оставить заметку Авторизуйтесь, чтобы отправить объявление по почте Поделиться ссылкой
20 декабря 2025.     КОНТАКТ: Наталья     ТЕЛ: .     Алатарцев.Недвижимость
Нежилое помещение1905 года переулок 14а (Розы Люксембург 26)  (6)  Показать на панораме
Ленинский район
1 этаж
5 всего
146 м2248.2 т.р.
1.7 за м2
Поднять объявление Авторизуйтесь, чтобы добавить в избранное Авторизуйтесь, чтобы оставить заметку Авторизуйтесь, чтобы отправить объявление по почте Поделиться ссылкой
12 декабря 2025.     КОНТАКТ: Оксана     ТЕЛ: .     Алатарцев.Недвижимость
Нежилое помещениеМосковский тракт 107в  (10)  Показать на панораме
Кировский район
монолит
3 этаж
24 всего
358 м2250.6 т.р.
0.7 за м2
комм. усл. НЕ входят в цену
Поднять объявление Авторизуйтесь, чтобы добавить в избранное Авторизуйтесь, чтобы оставить заметку Авторизуйтесь, чтобы отправить объявление по почте Поделиться ссылкой
17 декабря 2025.     КОНТАКТ: Владимир     ТЕЛ: .     Инвестор
Добавить объявление
Недвижимоcть на карте
Поиск по критериям +160 8901

ПРОДАЮ

ОБМЕН

СДАЮ

СПЕЦИАЛЬНЫЕ ПРЕДЛОЖЕНИЯ (50)

Агентства недвижимости 

Самолет плюс - центр Томск

Предложений:264

Алатарцев.Недвижимость

Предложений:761

Грасиона

Предложений:19

Компания ЭТАЖИ

Предложений:900

ТДСК Инвест

Предложений:55

Агама

Предложений:30

Жилфонд

Предложений:275