|
|
реклама
Рекламодатель: ООО "УК "КонтинентЪ", ИНН 7017208000 ИД креатива: LdtCKW5Ps

| |
|
Продам 2-этажный кирпичный дом
|
 |
|
|
|
Объявление № 5142182
|
|
|
|
|
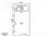
Больничная 7а/б (3)  | | Октябрьский район |
| Отделка |
требуется ремонт |
| Общая площадь |
124 кв.м |
| Площадь участка |
3.2 сот |
| Этажность |
2 |
| Материал |
кирпич |
| Вид |
вторичное |
| Тип дома |
дом |
|
|
| Есть центральные коммуникации: электричество. |
| Описание |
|
Жилой дом (не доля) площадь 124 м2 можно увеличить. Земля в собственности 3, 2 сотки. Первый этаж: одно помещение, высота 4, 5 метра использовался под автосервис. Второй этаж: три помещения, высота 3, 4 метра использовался как офис, есть просторная лоджия. Требуется ремонт, зато Вы сможете создать свой интерьер и функционал, не переплачивая за чужие фантазии и изыски.Есть возможность увеличь площадь. Без долгов. Подходит под любую форму расчетов. Просмотр по предварительной договоренности. Ключ в агентстве. Позвоните, посмотрим, понравиться, договоримся) И да, вы можете предложить свою цену...)
|
| Условия |
|
|
10 900 000 руб.
|
(87 900 руб. за м2). Ипотека. Материнский капитал. Документы готовы.
|
|

|

|
Объявление № 5142182
Статистика
|
|
| Опубликовал: |
viborn |
| Опубликовано: |
Добавлено сегодня |
| Истекает: |
05 февраля 2026 |
| Статус: |
Опубликовано
|
|
|
|
Недвижимоcть на карте
 |
 |
Поиск по критериям |
+352 |
 |
8913 |
 |
|
|
|
 |
реклама

|
|
|
 |
|
Предложений:270
|
|
|
Предложений:767
|
|
|
Предложений:19
|
|
|
Предложений:915
|
|
|
Предложений:55
|
|
|
Предложений:30
|
|
|
Предложений:267
|
| |
|
|
|
|
 |
|
 |
|