слабый снег, ветер: 2 м/c, Ю, давление: 2 мм рт.ст., влажность: 35% -8°
Сделать стартовой

Сдам в аренду нежилое помещение

Объявление № 5153726    
Коммерческая

Тип объекта  Нежилое помещение
Общая площадь  70 кв.м
Этаж/этажность  цоколь с окнами/9
в здании

Комсомольский проспект 39/4  (1)  Показать на панораме
Советский район
Этажность  9
Вид  вторичное
Описание

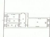
Уважаемые арендаторы, предлагаем выгодную локацию для вашего бизнеса на красной линии - на пр. Комсомольском, 39/4, с великолепным пешеходным трафиком, в районе с очень высокой плотностью населения и транспотрной доступностью. Помещения расположены в НАДземном цокольном этаже с полноценным окнами, выходящими на Комсомольский проспект. Помещение распашное, во всю ширину дома. Основные характеристики: - цокольный этаж жилого панельного дома - площадь 70 кв - высота потолка 2, 7 м. - предусмотрен месяц арендных каникул - помещение оснащено центральными коммуникациями Фото актуальные. Планировка в фоторяде. Приглашаем к сотрудничеству.
Карта     Показать панораму

Уменьшить
Увеличить
Условия

87 000 руб.
  (1 240 руб. за м2).

Контактная информация

Контактное лицо: Наталья

Телефон:

Алатарцев.Недвижимость, агентство недвижимости

Объявление № 5153726     Статистика

Опубликовал: Rimma2000
Опубликовано: 19 декабря 2025
Истекает: 09 января 2026
Статус: Опубликовано Опубликовано
Поделиться

Похожие варианты (11) На карте

Нежилое помещениеТверская 80  (1)
Советский район
кирпич
1 этаж
1 всего
85 м285 т.р.
1 за м2
комм. усл. входят в цену
Поднять объявление Авторизуйтесь, чтобы добавить в избранное Авторизуйтесь, чтобы оставить заметку Авторизуйтесь, чтобы отправить объявление по почте Поделиться ссылкой
08 декабря 2025.     КОНТАКТ: Виктория     ТЕЛ: .     Мария-Ра
Нежилое помещениеГоголя 13  (6)  Показать на панораме
Советский район
кирпич
1 этаж
9 всего
85 м289.25 т.р.
1.05 за м2
комм. усл. НЕ входят в цену
Поднять объявление Авторизуйтесь, чтобы добавить в избранное Авторизуйтесь, чтобы оставить заметку Авторизуйтесь, чтобы отправить объявление по почте Поделиться ссылкой
09 декабря 2025.     КОНТАКТ: Наталья     ТЕЛ: .     Агентство недвижимости Аврора
Нежилое помещениепр. Фрунзе 119/5 стр 2
Советский район
271.5 м289.595 т.р.
0.33 за м2
+ свет по счетчику
Поднять объявление Авторизуйтесь, чтобы добавить в избранное Авторизуйтесь, чтобы оставить заметку Авторизуйтесь, чтобы отправить объявление по почте Поделиться ссылкой
17 декабря 2025.     КОНТАКТ: Ольга Ивановна     ТЕЛ: .    
Нежилое помещениеПушкина 61 стр1  (3)  Показать на панораме
Октябрьский район
кирпич
2 этаж
4 всего
114.2 м285.65 т.р.
0.75 за м2
+ свет и вода по счетчикам
Поднять объявление Авторизуйтесь, чтобы добавить в избранное Авторизуйтесь, чтобы оставить заметку Авторизуйтесь, чтобы отправить объявление по почте Поделиться ссылкой
22 декабря 2025.     КОНТАКТ: Сергей Владимирович     ТЕЛ: .    
Нежилое помещениеЛенина проспект 118  (1)  Показать на панораме
Ленинский район
кирпич
1 этаж
6 всего
72.6 м287 т.р.
1.2 за м2
комм. усл. НЕ входят в цену
Поднять объявление Авторизуйтесь, чтобы добавить в избранное Авторизуйтесь, чтобы оставить заметку Авторизуйтесь, чтобы отправить объявление по почте Поделиться ссылкой
Опубликовано сегодня.     КОНТАКТ: Юрий     ТЕЛ: .    
Добавить объявление
Недвижимоcть на карте
Поиск по критериям +326 8946

ПРОДАЮ

ОБМЕН

СДАЮ

СПЕЦИАЛЬНЫЕ ПРЕДЛОЖЕНИЯ (50)

Агентства недвижимости 

Самолет плюс - центр Томск

Предложений:268

Алатарцев.Недвижимость

Предложений:765

Грасиона

Предложений:19

Компания ЭТАЖИ

Предложений:897

ТДСК Инвест

Предложений:55

Агама

Предложений:30

Жилфонд

Предложений:278