слабый снег, ветер: 1 м/c, ЮВ, давление: 2 мм рт.ст., влажность: 34% -13°
Сделать стартовой

Продам 2-этажный бетонный дом

Объявление № 5167802    
Дом

ДНП Слобода Вольная
Томский район
Отделка  требуется ремонт
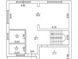
Общая площадь  135 кв.м
Площадь участка  6 сот
Этажность  2
Материал  бетон
Вид  новостройка
Тип дома  дом
Есть пластиковые окна.
Есть центральные коммуникации: электричество, водоснабжение, отопление.
Описание

Просторный 2-этажный дом 135 м² на участке 6 соток в СНТ, всего в 12 км от города!


Мечтаете о загородной жизни в собственном доме? Этот вариант – идеальное решение для большой семьи! Продается просторный 4-комнатный дом 2025 года постройки в тихом и уютном СНТ.


Основные характеристики: Площадь дома: 135 м² Площадь участка: 6 соток
Этажность: 2 этажа
Количество комнат: 4
Материал стен: экспериментальные материалы (теплоcтенa)
Категория земель: СНТ (садовое некоммерческое товарищество)
Год постройки: 2025

Коммуникации: Электричество: подключено
Водоснабжение: центральное
Отопление: электрическое (теплый пол на первом этаже, радиаторы на втором)
Канализация: септик
Газ: по границе участка (возможно подключение)

Внутренняя отделка: Дом в предчистовой отделке
Стены подготовлены под поклейку обоев
Стяжка пола (первый и второй этаж)
Разведена электрика, водоснабжение и канализация

Удобства: Санузел в доме
Парковочное место


Расположение: 12 км до центра города
Транспортная доступность
Живописное место, свежий воздух

Этот дом – отличная возможность воплотить свои дизайнерские идеи! Требуется ремонт, что позволит вам создать интерьер своей мечты.


Не упустите свой шанс! Звоните прямо сейчас! Без комиссии для покупателя !
Карта    

Уменьшить
Увеличить
Условия

10 900 000 руб.
  (80 740 руб. за м2). Ипотека. Материнский капитал. Документы готовы.

Контактная информация

Контактное лицо: Наталья Николаевна

Телефон:

Жилфонд, агентство недвижимости

Объявление № 5167802     Статистика

Опубликовал: Jilfond2022
Опубликовано: 18 ноября 2025
Истекает: 02 января 2026
Статус: Опубликовано Опубликовано
Поделиться

Похожие варианты (13) На карте

дом
2 этажа
5 комнат
пос. Кайдаловка, (адрес не присвоен)
Томский район
стеноблочный
138.8 м2
6.68 сот
10950 т.р.
78.89 за м2
Поднять объявление Авторизуйтесь, чтобы добавить в избранное Авторизуйтесь, чтобы оставить заметку Авторизуйтесь, чтобы отправить объявление по почте Поделиться ссылкой
22 ноября 2025.     КОНТАКТ: Феофилов Юрий     ТЕЛ: .     Города, агентство недвижимости
дом
2 этажа
5 комнат
Дзержинского (село Дзержинское)
Кировский район
дерево
157.7 м2
10 сот
11000 т.р.
69.75 за м2
Поднять объявление Авторизуйтесь, чтобы добавить в избранное Авторизуйтесь, чтобы оставить заметку Авторизуйтесь, чтобы отправить объявление по почте Поделиться ссылкой
01 октября 2025.     КОНТАКТ: Вера     ТЕЛ: .    
коттедж
2 этажа
4 комнаты
Родников (пос. Кисловка)
Томский район
кирпич
147 м2
100 м2 жилая
7.5 сот
10700 т.р.
72.790 за м2
Поднять объявление Авторизуйтесь, чтобы добавить в избранное Авторизуйтесь, чтобы оставить заметку Авторизуйтесь, чтобы отправить объявление по почте Поделиться ссылкой
05 декабря 2025.     КОНТАКТ: Алена     ТЕЛ: .     Ассоциация риелторов Томска
дом
2 этажа
8 комнат
Урожайная улица (СНТ Ветеран-3)  (4)
Томский район
182.3 м2
5 сот
11000 т.р.
60.34 за м2
Поднять объявление Авторизуйтесь, чтобы добавить в избранное Авторизуйтесь, чтобы оставить заметку Авторизуйтесь, чтобы отправить объявление по почте Поделиться ссылкой
19 декабря 2025.     КОНТАКТ: Пивоваров Михаил Юрьевич     ТЕЛ: .     Компания ЭТАЖИ
дом
2 этажа
4 комнаты
Больничная 7а/б  (3)  Показать на панораме
Октябрьский район
кирпич
124 м2
3.2 сот
10900 т.р.
87.9 за м2
Поднять объявление Авторизуйтесь, чтобы добавить в избранное Авторизуйтесь, чтобы оставить заметку Авторизуйтесь, чтобы отправить объявление по почте Поделиться ссылкой
22 декабря 2025.     КОНТАКТ: Владимир Николаевич     ТЕЛ: .     Выбор Недвижимости
Добавить объявление
Недвижимоcть на карте
Поиск по критериям +44 8868

ПРОДАЮ

ОБМЕН

СДАЮ

СПЕЦИАЛЬНЫЕ ПРЕДЛОЖЕНИЯ (50)

Агентства недвижимости 

Самолет плюс - центр Томск

Предложений:264

Алатарцев.Недвижимость

Предложений:763

Грасиона

Предложений:19

Компания ЭТАЖИ

Предложений:922

ТДСК Инвест

Предложений:54

Агама

Предложений:30

Жилфонд

Предложений:259