|
|
реклама
Рекламодатель: ООО "УК "КонтинентЪ", ИНН 7017208000 ИД креатива: LdtCKW5Ps

| |
|
Продам 1-комнатную квартиру
|
 |
|
|
|
Объявление № 5168958
|
|
|
|
|
| Количество комнат |
1 |
| Общая площадь |
34.550 кв.м |
| жилая |
23.7 кв.м |
| кухня |
4 кв.м |
| Этаж/этажность |
9/9 |
| Отделка |
требуется ремонт |
| Санузел |
совмещенный |
| Балкон/лоджия |
лоджия |
|
|
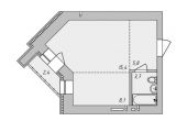
| Кухня-студия. |
| Есть пластиковые окна. |
| Описание |
|
Квартира мечты в новостройке: White Box или под ключ! Идеально для жизни и сдачи в аренду!
Ищете современную, стильную и функциональную студию? Предлагаем уникальную возможность стать владельцем уютной студии в новом жилом комплексе!
Два варианта отделки на выбор: White Box: Стяжка с шумоизоляцией, выровненные стены, разводка электрики – подготовьте пространство для реализации ваших дизайнерских идей! Забудьте о "грязных" работах и сразу приступайте к ремонту по своему вкусу. Под ключ: Полностью готовая к проживанию студия с чистовой отделкой, установленной сантехникой и освещением. Мечтаете о быстром переезде? Просто привезите свои вещи и наслаждайтесь комфортом!
Продуманная планировка: Объединенное пространство (23, 7 м² ): Гостиная и кухня создают единое, светлое пространство, которое легко зонировать под спальню, рабочую зону или гостевую. Санузел (3, 6 м² ): Компактный и функциональный, с ванной и удобной планировкой. Прихожая (5, 86 м² ): Оптимальный размер с местом для хранения вещей. Лоджия (2, 74 м² ): Выходит во внутренний двор, обеспечивая тишину и уют. Отличное место для отдыха и релаксации.
Преимущества: Новостройка Гибкие варианты отделки Удобная планировка Тихая лоджия Отличный вариант для жизни или сдачи в аренду Студия в современном жилом комплексе Студия с отделкой White Box Студия под ключ Квартира-студия Недорогое жилье эконом класса
Не упустите свой шанс! Звоните прямо сейчас! |
| Условия |
|
|
5 010 000 руб.
|
(145 010 руб. за м2). Ипотека. Материнский капитал. Документы готовы.
|
|

|

|
Объявление № 5168958
Статистика
|
|
| Опубликовал: |
Jilfond2022 |
| Опубликовано: |
24 ноября 2025 |
| Истекает: |
08 января 2026 |
| Статус: |
Опубликовано
|
|
|
|
Недвижимоcть на карте
 |
 |
Поиск по критериям |
+305 |
 |
9020 |
 |
|
|
|
 |
реклама

|
|
|
 |
|
Предложений:286
|
|
|
Предложений:763
|
|
|
Предложений:17
|
|
|
Предложений:919
|
|
|
Предложений:54
|
|
|
Предложений:32
|
|
|
Предложений:270
|
| |
|
|
|
|
 |
|
 |
|