|
|
реклама
Рекламодатель: ООО "УК "КонтинентЪ", ИНН 7017208000 ИД креатива: LdtCKW5Ps

| |
|
Продам 2-комнатную квартиру
|
 |
|
|
|
Объявление № 5170974
|
|
|
|
|
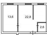
| Количество комнат |
2 |
| Общая площадь |
39 кв.м |
| Этаж/Этажность |
2/2 |
| Отделка |
черновая отделка |
| Санузел |
совмещенный |
|
|
| Описание |
|
Продаётся уютная квартира с двумя комнатами на втором этаже двухэтажного дома. Общая площадь квартиры составляет 39 квадратных метров. В данный момент в черновом варианте, что дает возможность новым владельцам оформить жилье по своему вкусу.
Это отличное предложение для тех, кому важен комфорт и удобство. Квартира идеально подойдет для семей с детьми, а также для молодых пар и одиноких людей. Благодаря хорошему расположению и удобной планировке, данное жилье может стать отличным вариантом для инвестиций в недвижимость.
Рядом с домом расположены все необходимые объекты инфраструктуры: детские сады, поликлиники, супермаркеты и другие учреждения. В пешей доступности находятся детский сад общеразвивающего вида №88 и Центр развития ребенка-детский сад №96, что делает данное жилье идеальным для семей с маленькими детьми.
Поликлиника №10 и детская городская больница №2 находятся в непосредственной близости, что обеспечивает быстрый доступ к медицинской помощи. Рядом также расположены супермаркеты Spar и Ярче!, где можно быстро и удобно совершать покупки.
Не упустите возможность стать обладателем уютной квартиры, которая подойдет как для семейного проживания, так и для сдачи в аренду. Обращайтесь по указанному номеру телефона для более подробной информации и организации просмотра объекта. Успейте стать счастливым обладателем этой замечательной квартиры! |
видео Светлый двухкомнатная без ремонта
| Условия |
|
|
3 400 000 руб.
|
(87 180 руб. за м2). Ипотека.
|
|

|

|
Объявление № 5170974
Статистика
|
|
| Опубликовал: |
Nata1980.S |
| Опубликовано: |
04 декабря 2025 |
| Истекает: |
18 января 2026 |
| Статус: |
Опубликовано
|
|
|
|
Недвижимоcть на карте
 |
 |
Поиск по критериям |
+427 |
 |
9089 |
 |
|
|
|
 |
реклама

|
|
|
 |
|
Предложений:287
|
|
|
Предложений:770
|
|
|
Предложений:17
|
|
|
Предложений:940
|
|
|
Предложений:55
|
|
|
Предложений:32
|
|
|
Предложений:273
|
| |
|
|
|
|
 |
|
 |
|