|
|
реклама
Рекламодатель: ООО "УК "КонтинентЪ", ИНН 7017208000 ИД креатива: LdtCKW5Ps

| |
|
Продам 2-комнатную квартиру
|
 |
|
|
|
Объявление № 5173302
|
|
|
|
|
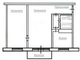
| Количество комнат |
2 |
| Общая площадь |
45 кв.м |
| жилая |
34 кв.м |
| кухня |
5.5 кв.м |
| Этаж/этажность |
3/5 |
| Отделка |
в хорошем состоянии |
| Санузел |
совмещенный |
| Балкон/лоджия |
балкон, остекление |
|
|
|
Сибирская 81а (1)  | | Советский район |
| Этажность |
5 |
| Материал |
панель |
| Год постройки |
1973 |
| Вид |
вторичное |
|
|
|
| Описание |
|
Продаём 2-х комнатную квартиру на удобном 3 этаже в центре Советского района, неподалёку от торгово-развлекательного центра "Изумрудный город". Квартира в хорошем жилом состоянии, тёплая, находится в середине дома. Полностью по всей квартире ЗАМЕНЕНА ЭЛЕКТРОПРОВОДКА!!! На окнах установлены пластиковые стеклопакеты. Требуется косметический ремонт. На стенах обои, можно освежить на свой вкус. Натяжной потолок по всей квартире. На полу ламинат. В сан.узеле стеновые панели. Современная входная дверь. Квартира освобождена. Никто не зарегистрирован. Быстрое заселение новых собственников. В подъезде всегда чисто и аккуратно (на подоконниках цветы и картины). Доброжелательные, дружные соседи. Вокруг дома организована наземная парковка. Отличная транспортная доступность. В шаговой доступности любой вид общественного транспорта что позволяет добраться без проблем в любую точку города.. Отлично развитая инфраструктура: Детские сады и школы, детские и спортивные площадки, супермаркеты и магазины разного направления, медицинские центры, спортивные и фитнес центры, банки и банкоматы, бытовые услуги и т.д. Покупайте и живите с удовольствием. Идеальный пакет документов. Один взрослый собственник. Квартира без долгов и обременений. Без детских долей и без присутствия органов опеки. Подходит под все виды расчётов. Полное юридическое сопровождение и чистота сделки. Показываем в любое удобное время по предварительной договорённости. Звоните! |
| Условия |
|
|
5 000 000 руб.
|
(111 110 руб. за м2). Срочно. Ипотека. Материнский капитал. Документы готовы.
|
|

|

|
Объявление № 5173302
Статистика
|
|
| Опубликовал: |
valeevann |
| Опубликовано: |
17 декабря 2025 |
| Истекает: |
31 января 2026 |
| Статус: |
Опубликовано
|
|
|
|
Недвижимоcть на карте
 |
 |
Поиск по критериям |
+206 |
 |
8925 |
 |
|
|
|
 |
реклама

|
|
|
 |
|
Предложений:261
|
|
|
Предложений:767
|
|
|
Предложений:19
|
|
|
Предложений:930
|
|
|
Предложений:56
|
|
|
Предложений:30
|
|
|
Предложений:271
|
| |
|
|
|
|
 |
|
 |
|