слабый снег, ветер: 1 м/c, ЮЗ, давление: 2 мм рт.ст., влажность: 34% -16°
Сделать стартовой

Продам 3-комнатную квартиру

Объявление № 5173760    
Квартира

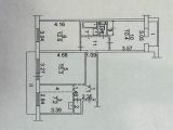
Количество комнат  3
Общая площадь  65 кв.м
жилая  39 кв.м
кухня  7.2 кв.м
Этаж/этажность  5/9
Отделка  в хорошем состоянии
Санузел  раздельный
Балкон/лоджия  балкон и лоджия, остекление
в здании

Лебедева 41  (1)  Показать на панораме
Советский район
Этажность  9
Материал  панель
Год постройки  1985
Вид  вторичное
Описание

Трехкомнатная квартира в центре Советского района
Про дом
Панельный дом 1985 года постройки. Удачное расположение — рядом пр-т Фрунзе и пр-т Комсомольский. Чистый подъезд, после косметического ремонта.
Про квартиру
Квартира расположена на среднем 5-м этаже 9-этажного дома. Удобная "распашная" планировка с гардеробной. Все комнаты изолированы. Выполнена перепланировка и она узаконена. Увеличили площадь кухни, утеплили лоджию. Также есть застекленный балкон. Свежий ремонт. При ремонтных работах использовались качественные строительные материалы. На полу кварцвиниловая плитка. Стены все выровнены. Санузел в кафеле. Квартира не требует вложений.
Инфраструктура и транспорт
В пешей доступности магазины, аптеки, ТРЦ. Удобное транспортное сообщение — рядом остановки автобусов и трамваев, позволяющие быстро добраться в любой район города. Дом находится в окружение муниципальных образовательных учреждений. Детский сад №29 находится прямо во дворе!
Карта     Показать панораму

Уменьшить
Увеличить
Условия

9 000 000 руб.
  (138 460 руб. за м2). Торг. Документы готовы.

Контактная информация

Контактное лицо: Иван

Телефон:

Самолет плюс - центр Томск, ООО

Объявление № 5173760     Статистика

Опубликовал: group4-p24
Опубликовано: Добавлено сегодня
Истекает: 05 февраля 2026
Статус: Опубликовано Опубликовано
Поделиться

Похожие варианты (31) На карте

3-комнатную
квартиру
Овражный переулок 19  (5)  Показать на панораме
Советский район
панель
Год постройки:2010
2 этаж
14 всего
76.5 м2
10.9 м2 кухня
9100 т.р.
118.95 за м2
Поднять объявление Авторизуйтесь, чтобы добавить в избранное Авторизуйтесь, чтобы оставить заметку Авторизуйтесь, чтобы отправить объявление по почте Поделиться ссылкой
20 декабря 2025.     КОНТАКТ: Екатерина     ТЕЛ: .     Арус
3-комнатную
квартиру
Лебедева 64  (1)  Показать на панораме
Советский район
панель
Год постройки:1998
2 этаж
10 всего
64.2 м2
47 м2 жилая
8.9 м2 кухня
8890 т.р.
138.47 за м2
Поднять объявление Авторизуйтесь, чтобы добавить в избранное Авторизуйтесь, чтобы оставить заметку Авторизуйтесь, чтобы отправить объявление по почте Поделиться ссылкой
10 октября 2025.     КОНТАКТ: Сергей     ТЕЛ: .    
3-комнатную
квартиру
Красноармейская 16  (2)  Показать на панораме
Советский район
панель
Год постройки:1984
8 этаж
9 всего
66.1 м2
40 м2 жилая
9 м2 кухня
8800 т.р.
133.13 за м2
Поднять объявление Авторизуйтесь, чтобы добавить в избранное Авторизуйтесь, чтобы оставить заметку Авторизуйтесь, чтобы отправить объявление по почте Поделиться ссылкой
18 декабря 2025.     КОНТАКТ: Алена     ТЕЛ: .     Алатарцев.Недвижимость
3-комнатную
квартиру
Сибирская 83  (12)  Показать на панораме
Советский район
панель
Год постройки:2010
7 этаж
10 всего
81.4 м2
49 м2 жилая
12 м2 кухня
9000 т.р.
110.57 за м2
Поднять объявление Авторизуйтесь, чтобы добавить в избранное Авторизуйтесь, чтобы оставить заметку Авторизуйтесь, чтобы отправить объявление по почте Поделиться ссылкой
05 декабря 2025.     КОНТАКТ: Сергей     ТЕЛ: .     Самолет плюс - центр Томск
3-комнатную
квартиру
Сибирская 9а  (14)
Советский район
монолит
Год постройки:2017
14 этаж
18 всего
63 м28900 т.р.
141.270 за м2
Поднять объявление Авторизуйтесь, чтобы добавить в избранное Авторизуйтесь, чтобы оставить заметку Авторизуйтесь, чтобы отправить объявление по почте Поделиться ссылкой
17 ноября 2025.     КОНТАКТ: Светлана     ТЕЛ: .     ABC
Добавить объявление
Недвижимоcть на карте
Поиск по критериям +395 8930

ПРОДАЮ

ОБМЕН

СДАЮ

СПЕЦИАЛЬНЫЕ ПРЕДЛОЖЕНИЯ (50)

Агентства недвижимости 

Самолет плюс - центр Томск

Предложений:270

Алатарцев.Недвижимость

Предложений:767

Грасиона

Предложений:19

Компания ЭТАЖИ

Предложений:923

ТДСК Инвест

Предложений:54

Агама

Предложений:30

Жилфонд

Предложений:267